proyectado junto con Juan Diego Rodríguez Olmo
El auditorio a proyectar junto al río Rin (Colonia) y la estación de trenes, está situada en una parcela inmensa actualmente ocupada por una carpa de conciertos provisional. El primer reto al que nos enfrentamos fue gestionar esa imensa cantidad de metros cuadrados, así que decidimos proyectar un edificio y espacios al aire libre que se articularan entre sí para organizar y colonizar la zona de actuación.
Nuestra primera inquietud era crear un auditorio que se relacionara con el entorno inmediato y la ciudad, y no crear un objeto aislado sin ningun tipo de conexión con Colonia. Para nosotros lo más evidente era separarse de barrera que es la estación y abrirse lo menos posible a ella, y en cambio, buscar relacionar el auditorio con el paseo fluvial y las calles y edificios de la ciudad que se extienden al norte de la parcela.
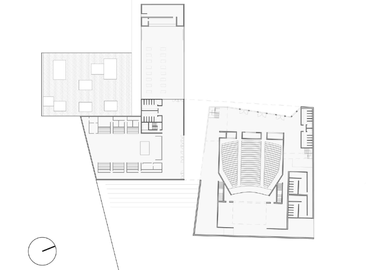
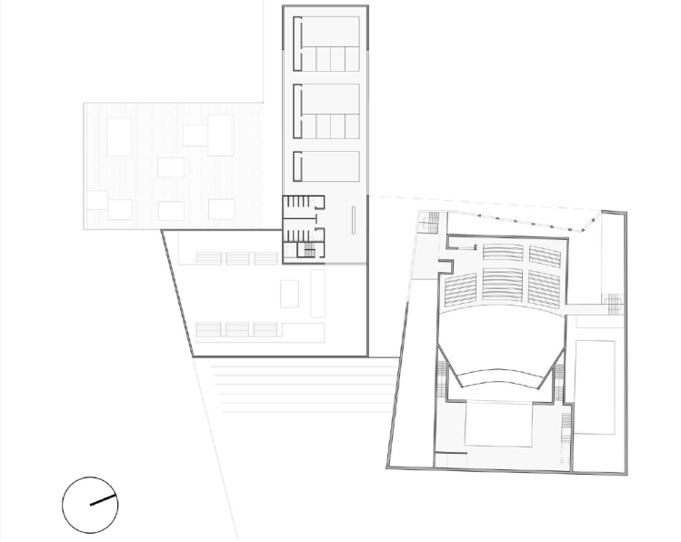
El edifico consta de dos volúmenes con formas paralelepípedas que se unen en un porche central que actúa de entrada común al edificio. Esta disposición de volúmenes genera dos plazas: Una más monumental que da al río y otra que busca una transparencia visual entre espacios libres y establecer un lugar de reunión para el ciudadano, más social.
El edificio también busca relacionarse con la plaza del oeste a la parcela, tras cruzar el paso de cebra, creando una prolongación de la plaza del auditorio hacia la parte superior de la parcela. Esta zona semi ajardinada es ideal para pasear junto a esos pintorescos parterres triangulares y láminas de agua a ambos lados de uno de los accesos del edificio.
Cada volumen que compone el Auditorio y Palacio de Congresos tiene un uso totalmente diferente. El volumen más cercano al paseo fluvial contiene el auditorio y el otro corresponde a una zona adaptada para exhibiciones y eventos culturales, restaurante y oficinas.
Este último volumen tiene adherida una plataforma de madera junto al restaurante con la intención de generar una terraza del bar o bien como otro espacio libre más dónde poder socializar antes, durante o después de algún evento que se realizase en el edificio.
Los volúmenes estarán revestidos por unas placas translúcidas de color gris claro para introducir en los espacios comunes, vestíbulos y pasillos si luz natural, así como para que cuando anochezca, el proyecto se observe como unos volúmenes luminosos que se asoman levemente al río.









