La propuesta para las 120 viviendas la parcela de Sevilla Este es un complejo de 3 volúmenes de 8 plantas que se alzan de entre una importante vegetación. El jardín es igual de importante o más que los bloques de viviendas, de hecho, como premisa inicial se parte de dividir el espacio en Edificado y Jardín, que tras múltiples planteamientos se termina por adoptar una postura en la que la vegetación rodea la arquitectura.
El proyecto se puede entender desde multiples recorridos: el del peatón y el del vehículo. Cada uno tiene su propio trazado, que confluyen en los espacios comunitarios de planta baja, rodeado de un vasto jardín de Jacarandas, Platanus Hispánica, y árboles de paraíso o Cinamomos, así como algún que otro arbusto y pequeñas colinas que surgen de la plana superficie de césped, dándole un aire más pintoresco.
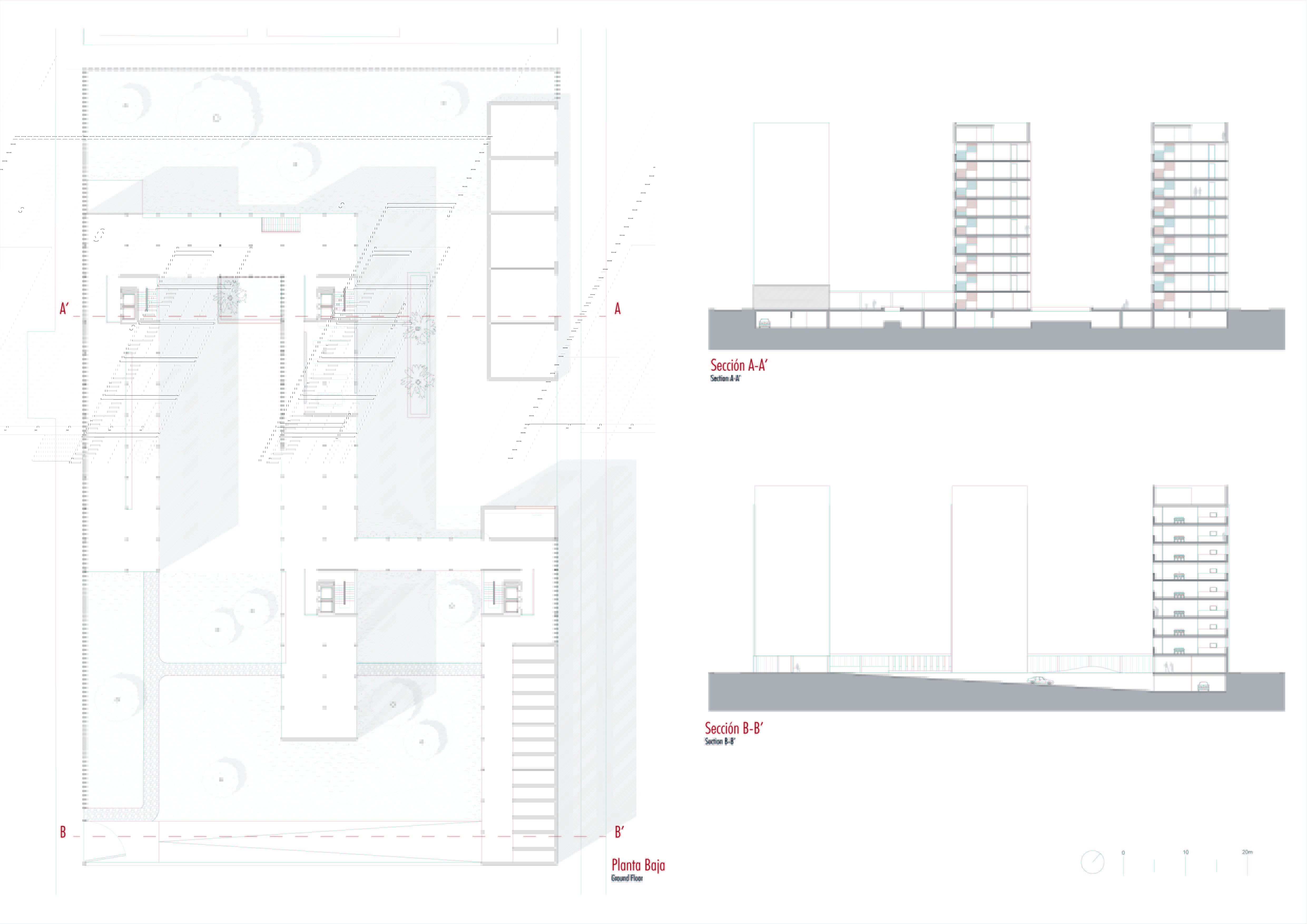
De los tres volúmenes de viviendas que surgen del jardín dos de ellas son limítrofes a la parcela y la otra se encuentra en una posición central. Estos volúmenes se unen en planta baja por dos pórticos, caminos de pizarra que cruzan el jardín y la propia superficie de hormigón que se forma con el forjado superior del garaje, dando lugar con ella una plaza principal donde surgen palmeras de los patios de luz quue ventilan naturalmente el garaje.
La planta baja es libre con la excepción de una ristra de trasteros, una biblioteca que se puede usar para reuniones de la junta de vecinos, la zona de seguridad y videovigilancia y almacén de mantenimiento, así como los módulos de escaleras y ascensores, por supuesto.
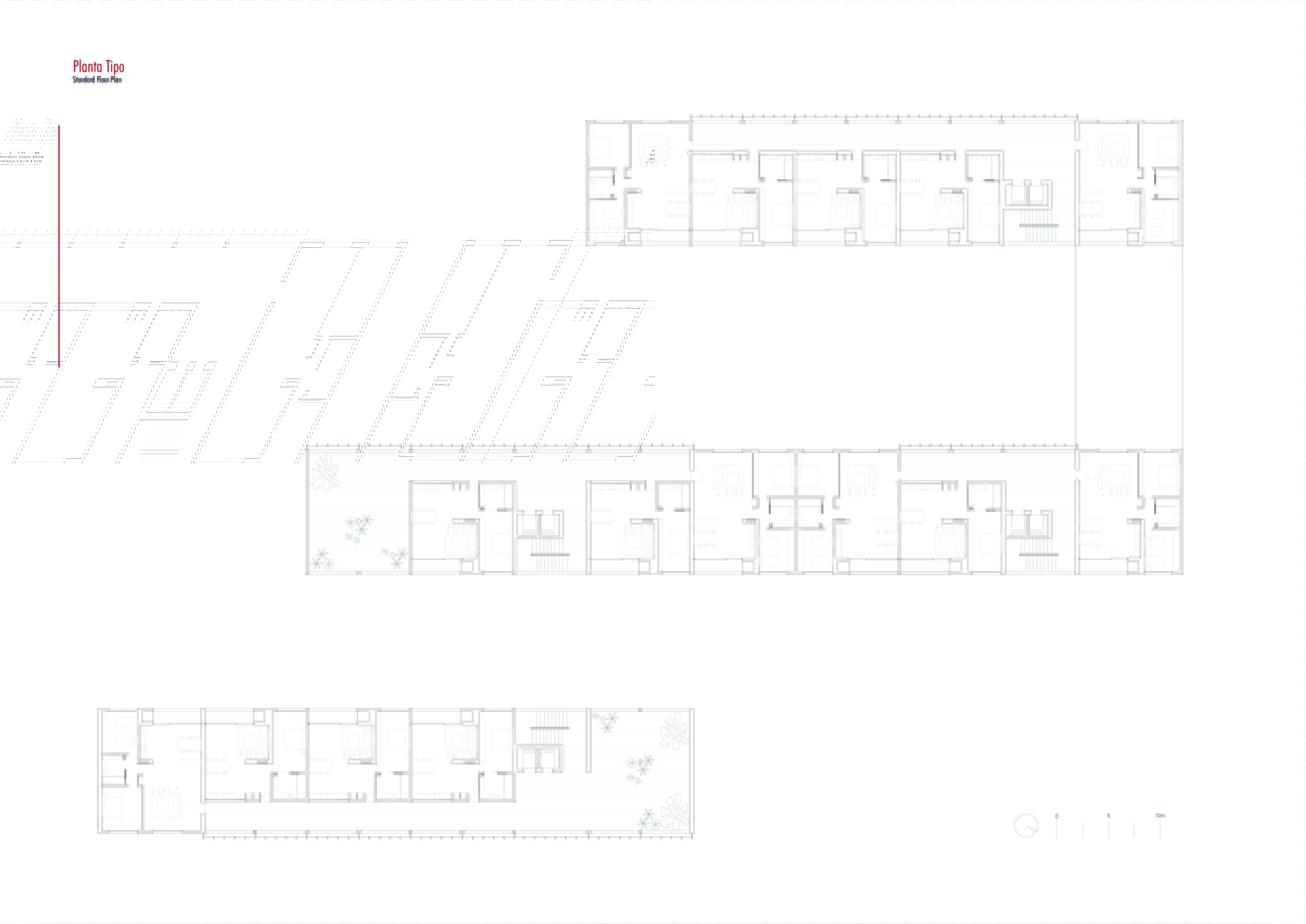
El edificio es en galería y posee dos tipos de viviendas: una de aproximadamente 110 m2 que tiene 2 dormitorios, 1 cuarto de baño, salón, cocina y terraza, y otra de 90 m2 de 1 dormitorio, 1 cuarto de baño, salón, cocina y terraza. Cada bloque es diferente y varia en planta, habiendo dos plantas tipo que se van alternando para así también dotar de una terraza ajardinada cada 2 plantas. Las galerías están protegidas por celosías de chapa metálica de color amarillo que se funden con las que actúan de limite en la parcela.
Al garaje de casi 150 plazas se puede acceder desde el edificio a través de los ascensores o bajando las escaleras que hay repartidas en la planta baja que mejoran la sectorización en caso de incendio.


